telefon: +420 775 706 600
e-mail: info@chladiciboxy.cz
Malá Morávka 47, 793 36 Malá Morávka

Chladicí boxy CZ s.r.o.

izolace, chladící a mrazící boxy

ukazka oplasteni prodejni haly prumyslovy mrazici box prumyslovy chladici box izolace prostupu formates

Realizace - Detaily použití systému FormaTěs present

Lemování zdí a světlíků v podélném směru
do výšky 30 cm.
Zaatikový žlab - varianta ukončení na horní
straně světlíku proti spádu střechy do v 30 cm.
Lemování zdí a světlíků v podélném směru
do 30 cm. Ukončeno kotvící lištou.
Zaatikový žlab rovný - panel Kingspan
do výšky 30 cm. Ukončeno kotvící lištou.
Lemování zdí a světlíků v podélném směru
do výšky 30 cm. Ukončeno lemováním.
Zaatikový žlab rovný - panel Kingspan
do výšky 30 cm. Ukončeno lemováním.
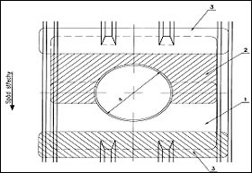
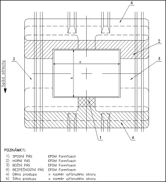
Půdorys kladení Formflash kruhového prostupu. Půdorys kladení Formflash hranatého prostupu.
Řez kladením Formflash - prostup
kruhový i hranatý.
Detail řešení mezistřešního žlabu a úžlabí - panel Kingspan šířka 20 cm.



PROSTUPY STŘEŠNÍMI PANELY
- SYSTÉMEM FORMATES® -
Porovnání prostupů - levý FORMATES®, pravý EJOT
Prostup střechou FORMATES®
hranatý
Prostup střechou FORMATES®
kulatý
Prostup střechou FORMATES®
hranatý
Prostup střechou FORMATES®
kulatý
Řez prostupem FORMATES®
kulatý
Technické řešení se týká dvou základních problémů:
1) Těsnění prostupů ve střechách především z panelů s vrchním profilovaným plechem. (spojené stavební prvky)
2) Provedení odvodnění ploch střech v místech úžlabí nebo v místech styku střechy s atikou. (spojované stavební prvky)
Add 1.
     Těsnění prostupů je prováděno především použitím flexibilního pásu EPDM Formflash americké firmy Firestone.
     Formflash je umělá pryž jehož vulkanizace byla ukončena cca na 60%. Nedovulkanizování dává materiálu schopnost přizpůsobit se podkladu na který je aplikován. Po nalepení speciálními lepidly stejného výrobce dochází vlivem působení povětrnosti k dokončení procesu vulkanizace a materiál si zachovává tvar ve kterém byl aplikován. Tím vzniká u prostupů pružná manžeta schopná eliminovat chvění a pohyby střechy i prostupujícího tělesa.

Podmínky aplikace
     Prostupující těleso musí být stabilizováno a ukotveno. Mezera mezi tělesem prostupu a okrajem výřezu v panelu musí být vyplněna (nejlépe vypěnit montážní pěnou - nepoužívat polystyrén nebo silikony) maximální mezera může být 0,5 cm. Povrch střechy musí být čistý a suchý. Těsnění prostupů lze provádět pouze za suchého počasí bez deště. Pečlivé vyplnění mezery mezi tělesem a střešním panelem montážní pěnou splní po dobu nepříznivého počasí i hydroizolační úlohu. Pro lepší odvedení vody se vlny střešních panelů seřezávají a vrchní plech se odstraňuje. Všechny ostré hrany musí být zaobleny aby nedošlo k proříznutí hydroizolační folie.
     Těsnění prostupů systémem FORMATES® není omezeno ani tvarově ani rozměrově.
Add 2.
     K odvodnění střech z výše uvedených panelů je rovněž použito komponentů hydroizolačního systému pro ploché střechy FIRESTONE.
     Napojení dvou ploch šikmých nebo šikmé a kolmé je řešeno obdobným způsobem jako u těsnění prostupů. Vrchní profilovaný plech panelů je odříznut a stržen. Na vzniklou rovnou plochu je nalepen pás EPDM a přes vlny je nalepen pás EPDM Formflash.
     Takto vytvořené úžlabí je napojeno na svislé odvodňovací potrubí pomocí vtoků dle požadavku projektu.
     Úžlabí a zaatikové žlaby nejsou vyspádovány a malé množství vody zůstávající po deštích na folii není závadou.

Podmínky aplikace
     Panely střešní i obvodové konstrukce musí být řádně ukotveny, nesmí vykazovat horizontální ani vertikální pohyb větší než 10 mm.
     Napojení ploch musí být vyplněno nejlépe PUR pěnou a upraveno do tvaru žlabu. Při napojování svislé stěny (zaatikový žlab) je vhodné styk dvou ploch překrýt plechovým úhelníkem min. 50x50 mm přikotveným k jedné z ploch.
     Ostatní podmínky jsou stejné jako u prostupů.
     Při montáži panelů je nutno zámky spojů panelů utěsnit BUTILOVOU páskou do vzdálenosti odpovídající sloupci vody 150 mm. Používání silikonů (akrylátů) v místech kde bude aplikován systém FORMATES®, JE NEPŘÍPUSTNÉ.
     Systém FORMATES® nelze použít tam kde dochází ke styku s oleji, tuky nebo ropnými produkty.
     Systém FORMATES® není pochozí a na střechy, kde je použit tento systém, je třeba zamezit volnému pohybu osob. Každá osoba, která půjde na střechu musí být o tomto náležitě poučena.
     Barva systému je černá, v případě požadavku investora lze použít zakrytí plechem nebo speciální nátěr,- tyto úpravy jsou nadstandardní.
Přípravu pro použití systému Formatěs si vždy provádí aplikační firma sama.
     Doporučujeme do žlabů jak mezistřešních tak i zaatikových instalovat topné kabely (vyhřívání), které v zimních měsících zajistí žlab trvale průchodný. Žlaby není možné montovat na střechy s menším než 7% spádem.
     Aplikační firma si vyhrazuje právo na kontrolu provedení montáže střešních panelů tam, kde má být systém FORMATES® použit. Před použitím systému je třeba konzultovat podmínky pro osazení prostupů.

     V uvedené oblasti jsme ochotni zodpovědět jakékoliv dotazy týkající se řešení těsnění prostupů i řešení odvodnění střech z výše uvedených panelů.

Těšíme se na spolupráci
Michal Poláček
Zaatikovaný žlab FORMATES®
konečné provedení
Zaatikovaný žlab FORMATES®
stavební připravenost



« zpět
Copyright © Mgr. Petr Vanický, 2012, design:Alberon Letohrad, s.r.o., 2004